chevron_left
chevron_right
Todo
Apuntes
Exámenes
Prácticas
chevron_left
chevron_right

apuntes

-

Análisis de estructuras

He publicado nuevos apuntes de 4º Analisis de Estructuras y Geotécnia: Análisis de estructuras

TEMA-4.-Nudos-rigidos-matricial.pdf
TEMA-2.-Nudos-Articulados-matricial.pdf
TEMA-3.-Nudos-rigidos-matricial.pdf
TEMA-1.-Nudos-articulados-graficos.pdf
Resumen-Metodo-Cross.pdf
Resumen-Metodo-matricial.pdf

examenes

-

Exámenes

He publicado nuevos examenes de 4º Analisis de Estructuras y Geotécnia: Exámenes

Examen-2022.pdf
Analisis-de-Estructuras-y-geotecnia.pdf
Estructuras-articuladas.pdf
Anónimo

@Anónimo

apuntes

-

Ejercicios resueltos

He publicado nuevos apuntes de 4º Analisis de Estructuras y Geotécnia: Ejercicios resueltos

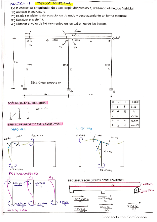
PRACTICA-1-MATRICIAL.pdf
Practica-3.pdf
PRACTICA-4.pdf
Practica-4-GEOTECNIA.pdf
Practica-2.pdf
Practica-3.pdf

practicas

-

Practicas Análisis de estructuras

He publicado nuevos practicas de 4º Analisis de Estructuras y Geotécnia: Practicas Análisis de estructuras

EJERCICIO-4-LUCIA-SILVA-ALONSO.pdf
ejercicio-1-lucia-silva.pdf
Ejercicio-MUROS-Lucia-Silva-Alonso.pdf
Ejercicio-7-LUCIA-SILVA-ALONSO.pdf
Ejercicio-6-Lucia-Silva-Alonso.pdf
Ejercicio-8-LUCIA-SILVA-ALONSO.pdf
Anónimo

@Anónimo

He publicado nuevos apuntes de 4º Analisis de Estructuras y Geotécnia: 3.pdf

11 páginas
¡Estás al día!

¡Estás al día!

Has visto todos los archivos