Construcción Arquitectónica II

chevron_left
chevron_right
Todo
Apuntes
Exámenes
Prácticas
chevron_left
chevron_right

Esquemas de fachadas y cubiertas, resumen de las diapositivas de clase

2 páginas

Ejemplo con apuntes de cálculo del tiempo de reverberación.

1 página

Apuntes y ejercicio de ejemplo para comprobar el grado de impermeabilidad de muros y suelos en contacto con el terreno y representar gráficamente una solución.

2 páginas

Apuntes con ejemplo de cálculo de las condensaciones superficiales e intersticiales

2 páginas

Apuntes para el cálculo de transmitancia térmica y un ejemplo de cálculo del espesor de aislamiento térmico en un cerramiento.

3 páginas

apuntes

-

Catálogo de detalles constructivos

He publicado nuevos apuntes de 3º Construcción Arquitectónica II: Catálogo de detalles constructivos

2Soluciones-de-cubiertas.pdf
1Cerramiento-convencional-de-LCV.-Exigencias-basicas..pdf

apuntes

-

Protección frente al ruido

He publicado nuevos apuntes de 3º Construcción Arquitectónica II: Protección frente al ruido

2Ejemplo-aplicacion-metodo-simplificado-DB-HR.pdf
3Aislamiento-y-acondicionamiento-acustico.pdf
Guia-de-aplicacion-HR.pdf
1Ejemplo-justificacion-opcion-simplificada-DBHR.pdf

apuntes

-

Protección frente a la humedad

He publicado nuevos apuntes de 3º Construcción Arquitectónica II: Protección frente a la humedad

2Fachadas-Grado-de-impermeabilidad-exigido-por-soluciones-constructivas.pdf
3Cubiertas.pdf
1Presencia-del-agua-en-la-construccion.pdf

apuntes

-

Ahorro de energía

He publicado nuevos apuntes de 3º Construcción Arquitectónica II: Ahorro de energía

Catalogo-Elementos-Constructivos.pdf
1Cerramientos-y-sus-prestaciones.pdf
2Problemas-en-los-aislamientos-termicos.pdf
3Ejemplo-caculco-DBHE.pdf

apuntes

-

Seguridad en caso de incendio

He publicado nuevos apuntes de 3º Construcción Arquitectónica II: Seguridad en caso de incendio

SIdiapositivas.pdf
Real-Decreto-8422013-leer.pdf

apuntes

-

Seguridad de utilización y accesibilidad

He publicado nuevos apuntes de 3º Construcción Arquitectónica II: Seguridad de utilización y accesibilidad

Manual-Accesibilidad-leerapoyo.pdf
1ACCESIBILIDAD-en-la-edificacion.pdf
2SUA-diapositivas.pdf

He publicado nuevos apuntes de 3º Construcción Arquitectónica II: PresentacionCTE.pdf

70 páginas

He publicado nuevos apuntes de 3º Construcción Arquitectónica II: Construccion-II.pdf

276 páginas
Anónimo

@Anónimo

apuntes

-

Apuntes por tema

He publicado nuevos apuntes de 3º Construcción Arquitectónica II: Apuntes por tema

Tema4Hormigon.pdf
Tema1Fabrica.pdf

He publicado nuevos apuntes de 3º Construcción Arquitectónica II: GUIA-examen-y-practica.pdf

52 páginas
Anónimo

@Anónimo

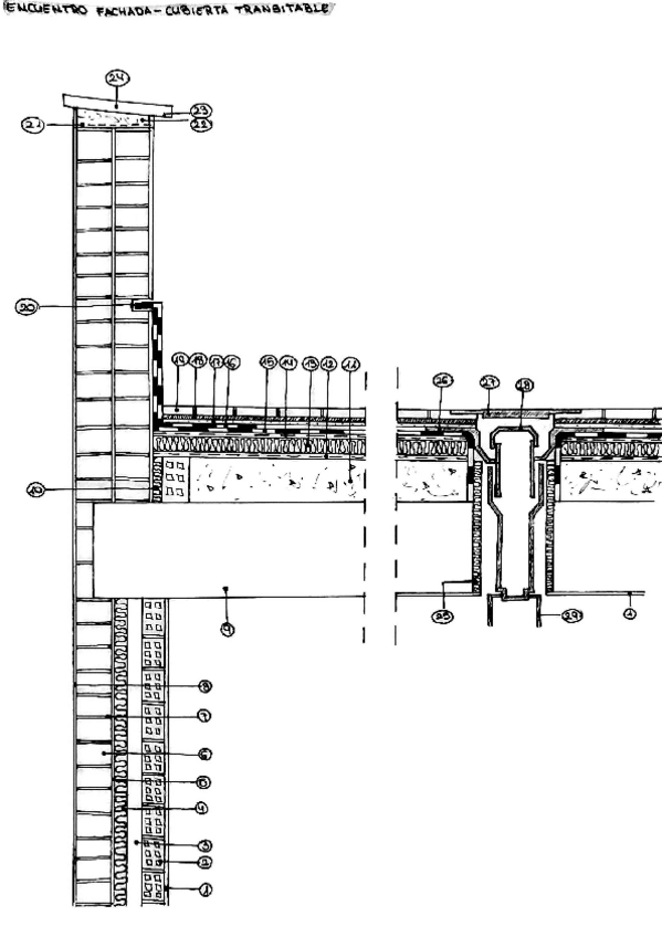
He publicado nuevos apuntes de 3º Construcción Arquitectónica II: Encuentro-fachada-cubierta-transitable.pdf

1 página
Anónimo

@Anónimo

He publicado nuevos apuntes de 3º Construcción Arquitectónica II: Encuentro-fachada-sotano.pdf

1 página
Anónimo

@Anónimo

He publicado nuevos apuntes de 3º Construcción Arquitectónica II: Encuentro-fachada-cubierta-no-transitable.pdf

1 página
Anónimo

@Anónimo

He publicado nuevos apuntes de 3º Construcción Arquitectónica II: Encuentro-fachada-hueco.pdf

1 página
Anónimo

@Anónimo

He publicado nuevos apuntes de 3º Construcción Arquitectónica II: Encuentro-Forjado-ESVTabiqueria.pdf

1 página
Anónimo

@Anónimo

He publicado nuevos apuntes de 3º Construcción Arquitectónica II: Encuentro-Fachada-Sotano.pdf

2 páginas
Anónimo

@Anónimo

He publicado nuevos apuntes de 3º Construcción Arquitectónica II: Encuentro-Fachada-Hueco.pdf

2 páginas
Anónimo

@Anónimo

He publicado nuevos apuntes de 3º Construcción Arquitectónica II: Encuentro-Fachada-Cubierta-transitable.pdf

2 páginas
Anónimo

@Anónimo

He publicado nuevos apuntes de 3º Construcción Arquitectónica II: Encuentro-Fachada-Cubierta-no-transitable.pdf

2 páginas
Anónimo

@Anónimo

He publicado nuevos apuntes de 3º Construcción Arquitectónica II: Apuntes-Construccion-HE.pdf

6 páginas
Anónimo

@Anónimo

He publicado nuevos apuntes de 3º Construcción Arquitectónica II: Apuntes-Construccion-HR.pdf

2 páginas
Anónimo

@Anónimo

He publicado nuevos apuntes de 3º Construcción Arquitectónica II: Apuntes-Construccion-HS.pdf

2 páginas
Anónimo

@Anónimo

He publicado nuevos apuntes de 3º Construcción Arquitectónica II: Apuntes-Construccion-SUASI.pdf

4 páginas

He publicado nuevos apuntes de 3º Construcción Arquitectónica II: Construccion-II.-Calculos.pdf

6 páginas

He publicado nuevos practicas de 3º Construcción Arquitectónica II: Practica-DBSUA-DBSI.pdf

5 páginas

He publicado nuevos practicas de 3º Construcción Arquitectónica II: Practica-Proteccion-Frente-a-la-Humedad.pdf

1 página

He publicado nuevos practicas de 3º Construcción Arquitectónica II: Practica-DBHE.pdf

5 páginas

He publicado nuevos apuntes de 3º Construcción Arquitectónica II: Temario-T0-y-T1.pdf

27 páginas

He publicado nuevos apuntes de 3º Construcción Arquitectónica II: Temario-hasta-T0.pdf

9 páginas

He publicado nuevos examenes de 3º Construcción Arquitectónica II: febrero-2020-construccion-II.pdf

3 páginas

He publicado nuevos apuntes de 3º Construcción Arquitectónica II: APUNTES-CONSTRUCCION-II.pdf

15 páginas

He publicado nuevos apuntes de 3º Construcción Arquitectónica II: construccion-apuntes.pdf

68 páginas

He publicado nuevos apuntes de 3º Construcción Arquitectónica II: APUNTES-CONSTRUCCION-PARCIAL-DICIEMBRE.pdf

8 páginas

He publicado nuevos apuntes de 3º Construcción Arquitectónica II: Apuntes-de-clase-Constru-II.pdf

23 páginas

He publicado nuevos apuntes de 3º Construcción Arquitectónica II: apuntes-examen-construccion-II.pdf

15 páginas

apuntes

-

cálculos de construcción paso a paso

He publicado nuevos apuntes de 3º Construcción Arquitectónica II: cálculos de construcción paso a paso

calculo-de-reverberaciones.pdf
calculo-de-transmitancias.pdf
calculos-de-condensaciones.pdf
¡Estás al día!

¡Estás al día!

Has visto todos los archivos