chevron_left
chevron_right
Todo
Apuntes
chevron_left
chevron_right

apuntes

-

varis 2

He publicado nuevos apuntes de 2º Enginyeria Fluïdomecànica: varis 2

Taules.pdf
NPSH.pdf
Solucioexercicismaquines1.pdf
practicaventiladors.pdf
Problemesmaquines1.pdf

apuntes

-

varis

He publicado nuevos apuntes de 2º Enginyeria Fluïdomecànica: varis

ex.pdf
EnginyeriaFluidomecanica.pdf
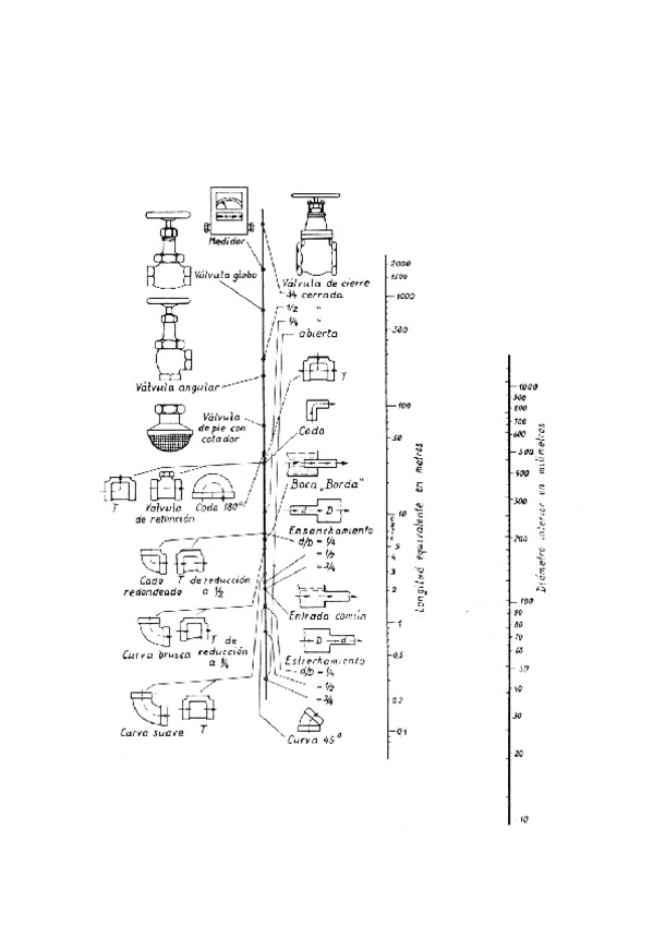
longitudequivalent.pdf
ACTPropiedades.pdf
exercicis-de-pneumatica.pdf
Nomogrames.pdf

apuntes

-

apunts

He publicado nuevos apuntes de 2º Enginyeria Fluïdomecànica: apunts

ipneumatica.pdf
¡Estás al día!

¡Estás al día!

Has visto todos los archivos