chevron_left
chevron_right
Todo
Apuntes
Ejercicios
Exámenes
PEC
Prácticas
Trabajos
chevron_left
chevron_right

practicas

-

PRACTICAS REPRESENTACION EN EDIFICACION

Autocad Ejercicios

PRACTICA-1Autocad-Ejercicios.pdf
PRACTICA-1Autocad-Ejercicios.pdf
Miniatura no disponible
PRACTICA-1Autocad-Ejercicios.dwg
Miniatura no disponible
PRACTICA-1Autocad-Ejercicios.dwg
PRACTICA-2Simbolos-de-Orientacion.pdf
PRACTICA-2Simbolos-de-Orientacion.pdf

practicas

-

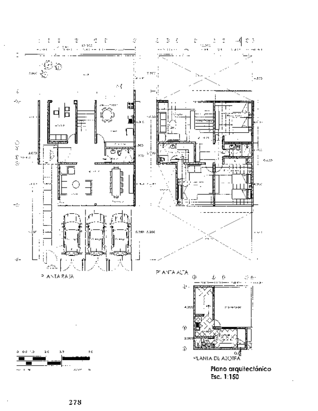
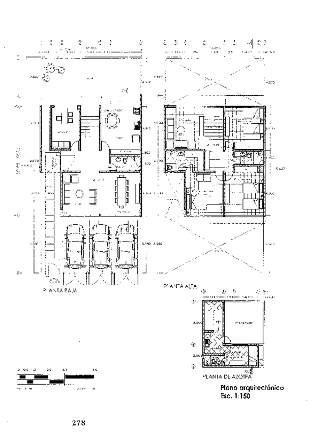
PLANO ARQUITECTÓNICO DE CASA HABITACIÓN

Plano Arquitectónico de Casa Habitación

PLANO-ARQUITECTONICO-DE-CASA-HABITACION.pdf
PLANO-ARQUITECTONICO-DE-CASA-HABITACION.pdf
Miniatura no disponible
PLANO-ARQUITECTONICO-DE-CASA-HABITACION.dwg
Miniatura no disponible
PLANO-ARQUITECTONICO-DE-CASA-HABITACION.dwg

He publicado nuevos trabajos de 1º Expresión Gráfica I: DIMENSIONES-MINIMAS-DE-CIRCULACIONES-HORIZONTALES.pdf

1 página

He publicado nuevos trabajos de 1º Expresión Gráfica I: REQUERIMIENTOS-MINIMAS-DE-PUERTAS.pdf

1 página

He publicado nuevos trabajos de 1º Expresión Gráfica I: REQUISITOS-MINIMOS-DE-LOS-PATIOS-DE-ILUMINACION.pdf

1 página

He publicado nuevos trabajos de 1º Expresión Gráfica I: REQUISITOS-MINIMOS-DE-ILUMINACION.pdf

1 página

He publicado nuevos trabajos de 1º Expresión Gráfica I: REQUISITOS-MINIMOS-DE-VENTILACION.pdf

1 página

He publicado nuevos trabajos de 1º Expresión Gráfica I: REQUERIMIENTOS-MINIMOS-DE-SERVICIOS-SANITARIOS.pdf

1 página

He publicado nuevos trabajos de 1º Expresión Gráfica I: REQUERIMIENTOS-MINIMOS-DE-SERVICIOS-DE-AGUA-POTABLE.pdf

1 página

He publicado nuevos trabajos de 1º Expresión Gráfica I: REQUERIMIENTOS-MINIMOS-DE-HABILIDAD-Y-FUNCIONAMIENTO.pdf

1 página

He publicado nuevos trabajos de 1º Expresión Gráfica I: REQUISITOS-MINIMOS-PARA-ESTACIONAMIENTO.pdf

1 página

He publicado nuevos trabajos de 1º Expresión Gráfica I: ORIENTACION-DE-CASA-HABITACION.pdf

1 página

He publicado nuevos trabajos de 1º Expresión Gráfica I: SIMBOLOGIA-DE-GAS-Y-MATERIALES.pdf

1 página

He publicado nuevos trabajos de 1º Expresión Gráfica I: SIMBOLOGIA-DE-INSTALACION-ELECTRICA-Y-MATERIALES.pdf

1 página

He publicado nuevos trabajos de 1º Expresión Gráfica I: SIMBOLOGIA-DE-INSTALACION-SANITARIA-Y-MATERIALES.pdf

1 página

He publicado nuevos trabajos de 1º Expresión Gráfica I: SIMBOLOGIA-DE-INSTALACION-HIDRAULICA-Y-MATERIALES.pdf

1 página

He publicado nuevos trabajos de 1º Expresión Gráfica I: MATERIALES-PARA-DIBUJAR-EN-PLANOS.pdf

1 página

He publicado nuevos trabajos de 1º Expresión Gráfica I: TIPOS-DE-ESCALAS-Y-CLAVES-ALFANUMERICAS.pdf

1 página

He publicado nuevos trabajos de 1º Expresión Gráfica I: COMANDOS-DE-AUTOCAD.pdf

1 página

He publicado nuevos trabajos de 1º Expresión Gráfica I: TIPO-DE-ESCALA-GRAFICAS.pdf

1 página

He publicado nuevos trabajos de 1º Expresión Gráfica I: TIPOS-DE-PLANOS-Y-SU-FUNCION.pdf

1 página

He publicado nuevos trabajos de 1º Expresión Gráfica I: PIE-DE-PLANO.pdf

1 página

He publicado nuevos ejercicios de 1º Expresión Gráfica I: PARTES-DE-UN-PLANO.pdf

1 página

He publicado nuevos apuntes de 1º Expresión Gráfica I: NORMAS-DE-CONSTRUCCION-COPIAS.pdf

16 páginas

He publicado nuevos ejercicios de 1º Expresión Gráfica I: TIPOS-DE-COTAS.pdf

1 página

He publicado nuevos ejercicios de 1º Expresión Gráfica I: MODIFICACION-DE-DATOS-2.pdf

1 página

He publicado nuevos trabajos de 1º Expresión Gráfica I: MODIFICACION-DE-DATOS.pdf

1 página

He publicado nuevos apuntes de 1º Expresión Gráfica I: 2.-NORMA-TECNICA-COMPELMENTARIA-PARA-EL-PROYECTO-ARQUITECTONICO.pdf

111 páginas

He publicado nuevos ejercicios de 1º Expresión Gráfica I: NORMAS-TECNICAS-COMPLEMENTARIAS-DEL-REGLAMENTO-DE-CONSTRUCCION.pdf

1 página

He publicado nuevos examenes de 1º Expresión Gráfica I: PROYECTO-FINAL-2.pdf

4 páginas

He publicado nuevos pec de 1º Expresión Gráfica I: COMO-HACER-EL-PROYECTO.pdf

9 páginas

He publicado nuevos examenes de 1º Expresión Gráfica I: PROYECTO-FINAL.pdf

30 páginas

He publicado nuevos examenes de 1º Expresión Gráfica I: FORMATO.pdf

31 páginas

He publicado nuevos ejercicios de 1º Expresión Gráfica I: REQUISITOS-MINIMOS-PARA-LAS-INSTALACIONES-DE-COMBUSTIBLES.pdf

1 página

He publicado nuevos ejercicios de 1º Expresión Gráfica I: requisitos-minimos-para-la-construccion-de-escaleras.pdf

1 página

He publicado nuevos trabajos de 1º Expresión Gráfica I: PROYECTO-DE-CASA-HABITACION.pdf

2 páginas

He publicado nuevos examenes de 1º Expresión Gráfica I: PRIMER-PARCIAL-DE-EXPRESION-GRAFICA-I.pdf

1 página

He publicado nuevos trabajos de 1º Expresión Gráfica I: PLANTA-ARQUITECTONICA-DE-RECAMARA-PRINCIPAL.pdf

1 página

He publicado nuevos apuntes de 1º Expresión Gráfica I: lamina.pdf

1 página

He publicado nuevos trabajos de 1º Expresión Gráfica I: INSTALACION-HIDROSANITARIA.pdf

11 páginas

He publicado nuevos trabajos de 1º Expresión Gráfica I: DISENO-DE-CASETA.pdf

1 página

He publicado nuevos trabajos de 1º Expresión Gráfica I: SIMBOLOGIA-DE-INSTALACIONES-SANITARIA-HIDRAULICA-Y-ELECTRICA.pdf

20 páginas

He publicado nuevos ejercicios de 1º Expresión Gráfica I: RECAMARA.pdf

1 página

He publicado nuevos ejercicios de 1º Expresión Gráfica I: Recamara-Principal.pdf

1 página

He publicado nuevos ejercicios de 1º Expresión Gráfica I: RECAMARA.pdf

1 página

He publicado nuevos ejercicios de 1º Expresión Gráfica I: CASETA-DE-VIGILANCIA.pdf

1 página

He publicado nuevos apuntes de 1º Expresión Gráfica I: apuntes-de-expresion-grafica.pdf

2 páginas

DIAPOSITIVAS DE LOS DIFERENTES PLANOS

19 páginas
¡Estás al día!

¡Estás al día!

Has visto todos los archivos