chevron_left
chevron_right
Todo
Apuntes
Ejercicios
Exámenes
chevron_left
chevron_right
Anónimo

@Anónimo

He publicado nuevos examenes de 4º Instalaciones II: Examenes-resueltos-evacuacion.pdf

4 páginas
Anónimo

@Anónimo

He publicado nuevos examenes de 4º Instalaciones II: Examenes-resueltos-abastecimiento.pdf

4 páginas
Anónimo

@Anónimo

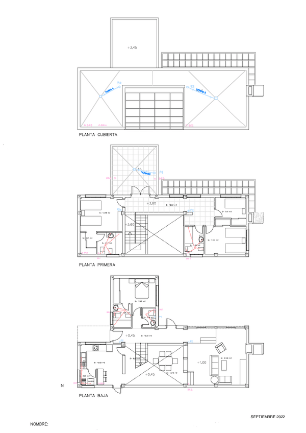
He publicado nuevos examenes de 4º Instalaciones II: Examen-septiembre-2021.pdf

1 página
Anónimo

@Anónimo

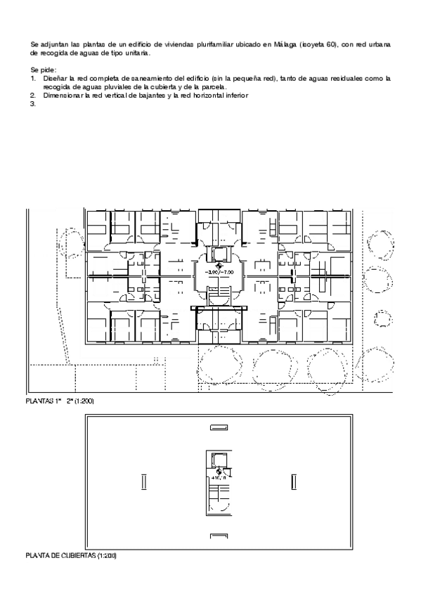
He publicado nuevos examenes de 4º Instalaciones II: Examen-noviembre-2022.pdf

1 página
Anónimo

@Anónimo

He publicado nuevos examenes de 4º Instalaciones II: Ejercicio-examen-tipo-2.pdf

4 páginas

He publicado nuevos examenes de 4º Instalaciones II: Examen-Instalaciones-II-Septiembre-2019.pdf

1 página
Anónimo

@Anónimo

He publicado nuevos examenes de 4º Instalaciones II: Ejemplo de exámen.pdf

2 páginas
Anónimo

@Anónimo

He publicado nuevos ejercicios de 4º Instalaciones II: Práctica y examen.pdf

43 páginas

He publicado nuevos ejercicios de 4º Instalaciones II: Clase 08_01_18 Caso práctico y S. Urbano.pdf

44 páginas

apuntes

-

Apuntes de la Asignatura

Apuntes de la U. de Cartagena que sirven para la asignatura al 100%

APUNTES.pdf
EJEMPLO_EDIF.pdf
PROYECTO+SUMINISTRO+AGUA.pdf
EXAMEN DE FEBRERO DE 2015.pdf
PREGUNTAS FRECUENTES.pdf
PARTE PRACTICA DEL EXAMEN 2015.rar
¡Estás al día!

¡Estás al día!

Has visto todos los archivos