Instalaciones-servicios

chevron_left
chevron_right
Todo
Apuntes
Ejercicios
Exámenes
Otros
Prácticas
chevron_left
chevron_right

He publicado nuevos apuntes de 3º Instalaciones-servicios: Dimensionado-saneamiento-hidraulica.pdf

1 página

He publicado nuevos apuntes de 3º Instalaciones-servicios: Esquema-unifilar-vivienda.pdf

1 página

He publicado nuevos ejercicios de 3º Instalaciones-servicios: Ejemplo-calculo-derivaciones-individuales.pdf

3 páginas

He publicado nuevos examenes de 3º Instalaciones-servicios: Ejercicio-examen-parte-hidraulica.pdf

1 página

He publicado nuevos apuntes de 3º Instalaciones-servicios: Apuntes-Prevision-de-cargas-Electrica.pdf

1 página

He publicado nuevos practicas de 3º Instalaciones-servicios: Practica-4-calculo-seccion.pdf

4 páginas

He publicado nuevos apuntes de 3º Instalaciones-servicios: Apuntes-calculo-de-seccion-electrica.pdf

1 página

He publicado nuevos practicas de 3º Instalaciones-servicios: Practica-1-prevision-de-cargas.pdf

6 páginas

apuntes

-

HIDRÁULICA y ELÉCTRICA-TRABAJOS y APUNTEs

He publicado nuevos apuntes de 3º Instalaciones-servicios: HIDRÁULICA y ELÉCTRICA-TRABAJOS y APUNTEs

InstalacionesServiciosElectrica-ENTREGA-FINAL.pdf
InstalacionesServiciosHidraulica-ENTREGAFINAL.pdf
Miniatura no disponible
ELECTRICA-apuntes-practica.pdf

He publicado nuevos otros de 3º Instalaciones-servicios: Tablas-de-electrica-que-dan-ene-el-examen.pdf

5 páginas

He publicado nuevos otros de 3º Instalaciones-servicios: Tablas-hidraulica-que-dan-en-el-examen.pdf

8 páginas

He publicado nuevos apuntes de 3º Instalaciones-servicios: apuntes.pdf

13 páginas

He publicado nuevos apuntes de 3º Instalaciones-servicios: resumen-escrito-practicas-parte-electrica.pdf

3 páginas

apuntes

-

HIDRAULICA

apuntes tomados de clase

Intro-HIDRAULICA.pdf

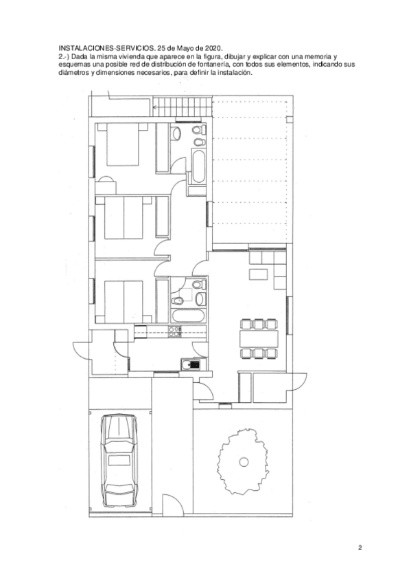
He publicado nuevos examenes de 3º Instalaciones-servicios: EXAMEN-25-MAYO-SANEAMIENTO-2020.pdf

7 páginas

He publicado nuevos apuntes de 3º Instalaciones-servicios: Electricidad.pdf

13 páginas
Anónimo

@Anónimo

Toda la teoría que hay que estudiar para la segunda parte

14 páginas
Anónimo

@Anónimo

He publicado nuevos examenes de 3º Instalaciones-servicios: ExamenFinalHIDRAULICAResuelto.pdf

6 páginas
Anónimo

@Anónimo

He publicado nuevos examenes de 3º Instalaciones-servicios: ExamenFinalHIDRAULICA.pdf

10 páginas

apuntes

-

Qué es necesario saber para el examen - Instalaciones Servicios

He publicado nuevos apuntes de 3º Instalaciones-servicios: Qué es necesario saber para el examen - Instalaciones Servicios

Que-es-necesario-saber-para-el-examen-Instalaciones-Servicios.pdf
Anónimo

@Anónimo

apuntes

-

Temas electricidad

He publicado nuevos apuntes de 3º Instalaciones-servicios: Temas electricidad

UD1.pdf
UD2.pdf
UD2.pdf
UD2.pdf
UD3.pdf
UD3.pdf

He publicado nuevos apuntes de 3º Instalaciones-servicios: Teoria-hidraulica-.pdf

5 páginas

He publicado nuevos apuntes de 3º Instalaciones-servicios: 5.pdf

16 páginas

He publicado nuevos apuntes de 3º Instalaciones-servicios: 4.pdf

17 páginas

He publicado nuevos apuntes de 3º Instalaciones-servicios: 3.pdf

10 páginas

He publicado nuevos apuntes de 3º Instalaciones-servicios: 2.pdf

8 páginas

He publicado nuevos apuntes de 3º Instalaciones-servicios: 1.pdf

4 páginas
¡Estás al día!

¡Estás al día!

Has visto todos los archivos