Daviddf1504
PRÁCTICA 4_LOSA DE CIMENTACIÓN CON DETALLES Y PLANOS
PRACTICA-4LOSA-DE-CIMENTACION.pdf
5 páginas
Exámenes - examen construccion 1.jpg
jpg
89
0
Prácticas - merged.pdf
pdf
15 páginas
197
1
Prácticas - PRACTICA-SATE.pdf
1 página
289
2
Apuntes - PLANIMETRÍA_P03_MARINA RUIZ RAYA.pdf
4 páginas
246
Prácticas - PLANOS P4 LOSA DE CIMENTACIÓN.pdf
247
Prácticas - MEMORIA P4 LOSA DE CIMENTACIÓN.pdf
8 páginas
226
Exámenes - examen construccion 2.jpg
55
Exámenes - examen construccion 3.jpg
58
Exámenes - Examen-Construccion-3.jpg
204
Apuntes - CONSTRUCCIÓN 3 + EXÁMENES + PRÁCTICAS NOTA 8.pdf
133 páginas
236
Prácticas - FORJADOS RETICULARES.pdf
16 páginas
185
Prácticas - P4-MURO Y LOSA.pdf
28 páginas
195
Exámenes - examen construccion 4.jpg
43
Prácticas - P2-SATE-y-FLCV-G-3.pdf
27 páginas
293
Apuntes - MEMORIA_P03_MARINA RUIZ RAYA.pdf
10 páginas
184
Apuntes - EXAMENES TIPO CONSTRUCCION 3.pdf
24 páginas
162
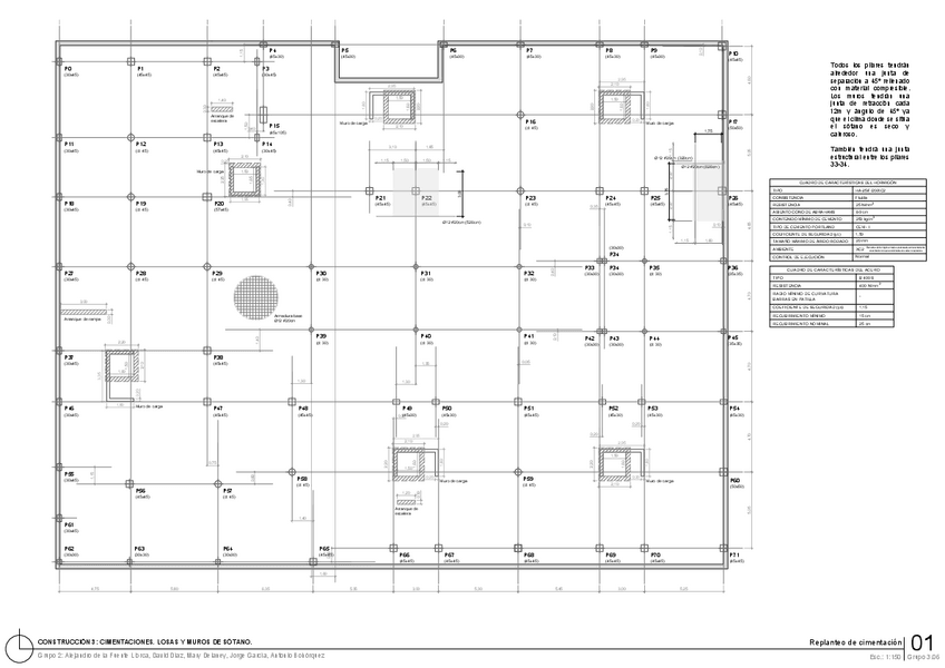
Trabajos - C3PRACTICA-CIMENTACIONES-Y-MURO-DE-SOTANO.pdf
22 páginas
232
Prácticas - PRACTICA3FORJADO-RETICULAR.pdf
19 páginas
161
Apuntes - Apuntes resumen temas 1-10.pdf
38 páginas
115
Prácticas - PRACTICA2PANELES-HORMIGON.pdf
20 páginas
147