Saxoatope
2019-2020 Practica 1
No se pueden subir las soluciones del profesor por copyright
Practica-1-Ejercicio-1.pdf
2 páginas
Practica-1-Ejercicio-2.pdf
1 página
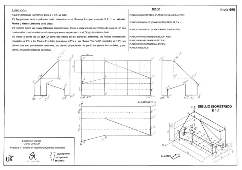
Practica-1-Ejercicio-3.pdf
Apuntes - CHAPA.pdf
pdf
67
0
Prácticas - Practica-3-Ejercicio-1.pdf
79
Apuntes - Practicas-dibujo-3.pdf
18 páginas
80
4
Apuntes - APUNTES-MUY-BUENOS.pdf
43 páginas
87
1
Apuntes - 1 SISTEMA DE REPRESENTACION.pdf
47
Prácticas - Practica-6-Ejercicio-2.pdf
74
Apuntes - banco-de-preguntas-expresion.docx
docx
41
Prácticas - Practica-1-Ejercicio-1.pdf
63
Apuntes - 5 INTERSECCIONES.pdf
3 páginas
36
Test - PREGUNTAS-TIPO-TEST.pdf
5 páginas
76
Apuntes - 3 LA RECTA.pdf
4 páginas
32
Apuntes - 2 EL PUNTO.pdf
37
Prácticas - Practica36 y caminitos.pdf
11 páginas
52
Exámenes - CAMINITOS-EXAMEN.pdf
37 páginas
Apuntes - 4 EL PLANO.pdf
29
Prácticas - Practica-8-Ejercicio-1.pdf
Prácticas - Practica-6-ej-4-Obligatorio-para-evaluacion-por-curso.pdf
44
Exámenes - IMG20191125111411.jpg
jpg
5
Prácticas - Practica 4 E.G..pdf
40
Apuntes - 9 ABATIMIENTO.pdf
27