@arquser

Bio: 2º Grado en Fundamentos de la arquitectura

42 Publicaciones

760 Interacciones

1 Seguidores

4 Siguiendo

Lista de publicaciones de arquser

He publicado nuevos apuntes de 3º Construcción II: SISTEMAS-ESTRUCTURALES-DE-ACERO.pdf

7 páginas

He publicado nuevos apuntes de 3º Construcción II: COMUNICACIONES-VERTICALES.pdf

6 páginas

He publicado nuevos apuntes de 3º Construcción II: CIMENTACIONES-DIRECTAS.pdf

4 páginas

He publicado nuevos apuntes de 2º Construcción I: CUBIERTAS-PLANAS.pdf

7 páginas

He publicado nuevos apuntes de 2º Construcción I: CUBIERTAS-INCLINADAS.pdf

6 páginas

He publicado nuevos apuntes de 2º Construcción I: MADERA.pdf

5 páginas

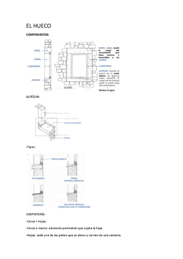
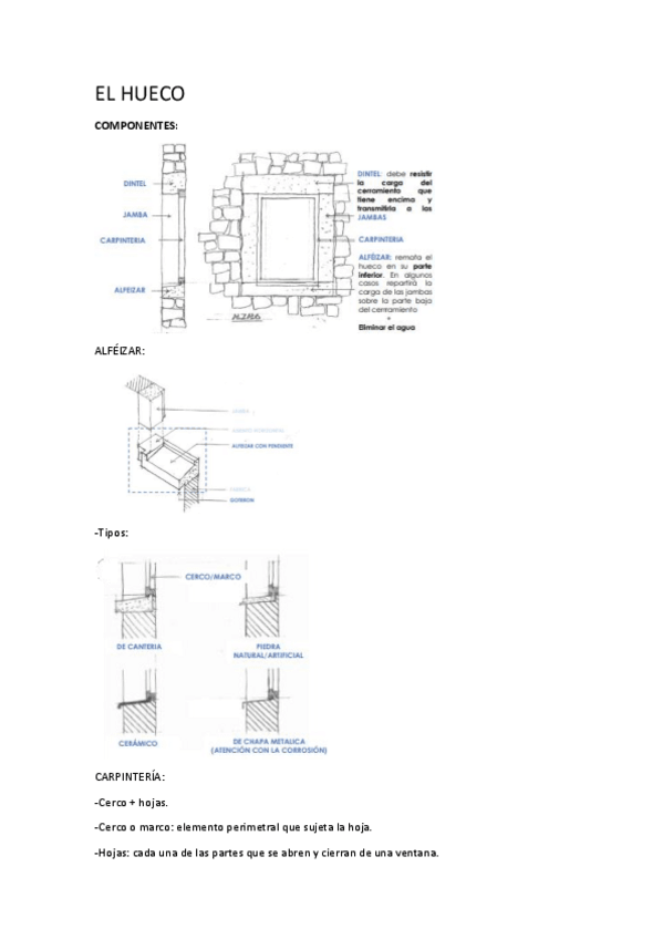
He publicado nuevos apuntes de 2º Construcción I: EL-HUECO.pdf

8 páginas

He publicado nuevos apuntes de 2º Construcción I: FACHADAS.pdf

4 páginas

He publicado nuevos apuntes de 2º Construcción I: FUNCION-CERRAMIENTO.pdf

5 páginas

He publicado nuevos apuntes de 2º Construcción I: ESTRUCTURAS-METALICAS.pdf

6 páginas

He publicado nuevos apuntes de 2º Construcción I: HORMIGON-ENTERO.pdf

10 páginas

He publicado nuevos apuntes de 2º Construcción I: FUNCION-SOPORTE.pdf

7 páginas

He publicado nuevos trabajos de 1º Geometria y dibujo de arquitectura II: TRABAJO-2-GDA-2.pdf

5 páginas

He publicado nuevos ejercicios de 1º Dibujo, analisis e ideacion II: ejercicio-de-patron.pdf

1 página

He publicado nuevos trabajos de 1º Dibujo, analisis e ideacion II: DAI-2-ENTREGA-FINAL.pdf

75 páginas

charla de plásticos del profesor

10 páginas

He publicado nuevos apuntes de 2º Materiales de Construcción: Metales.pdf

19 páginas

He publicado nuevos apuntes de 2º Ciudad y Urbanismo: REALIDAD-Y-RETOS-EN-LA-PRODUCCION-DEL-ESPACIO-URBANO.pdf

9 páginas

charla, aunque falta el final

3 páginas

charla del 16 de noviembre 2022

3 páginas