@Perico9

85.10 € • 57.91k EXP

Bio: .

133 Publicaciones

12.72k Interacciones

3 Seguidores

1 Siguiendo

Lista de publicaciones de Perico9

He publicado nuevos test de 4º Mantenimiento: PRUEBA-05-24052021-ENERGIA-SOLAR-Y-VENTILACION--PCI-Revision-del-intento.pdf

13 páginas

He publicado nuevos test de 4º Mantenimiento: PRUEBA-04-17052021-FONTANERIA--CLIMATIZACION-Y-ACS-Revision-del-intento.pdf

12 páginas

He publicado nuevos apuntes de 4º Mantenimiento: PRUEBA-03-26042021-ASCENSORES--SANEAMIENTO.pdf

16 páginas

test

-

TEST 02 - ELECTRICIDAD + TELEC

He publicado nuevos test de 4º Mantenimiento: TEST 02 - ELECTRICIDAD + TELEC

PRUEBA-02-ELECTRICIDAD--TELECOMUNICACIONES.pdf

He publicado nuevos test de 4º Legislación Urbanística: PREGUNTAS-TEST-TIPO-PARCIAL-I.pdf

5 páginas

examenes

-

SEGUNDO EJERCICIO 2º PARCIAL

He publicado nuevos examenes de 2º Materiales de Construcción II: SEGUNDO EJERCICIO 2º PARCIAL

2-PENULTIMO-No-DNI.pdf
8-PENULTIMO-No-DNI.pdf
7-PENULTIMO-No-DNI.pdf
6-PENULTIMO-No-DNI.pdf
4-PENULTIMO-No-DNI.pdf
9-PENULTIMO-No-DNI.pdf

examenes

-

PRIMER EJERCICIO 2º PARCIAL

He publicado nuevos examenes de 2º Materiales de Construcción II: PRIMER EJERCICIO 2º PARCIAL

2-ANTEPENULTIMO-No-DNI-1.pdf
3-ANTEPENULTIMO-No-DNI.pdf
8-PENULTIMO-No-DNI.pdf
7-ANTEPENULTIMO-No-DNI.pdf
0-ANTEPENULTIMO-No-DNI.pdf
1-ANTEPENULTIMO-No-DNI.pdf

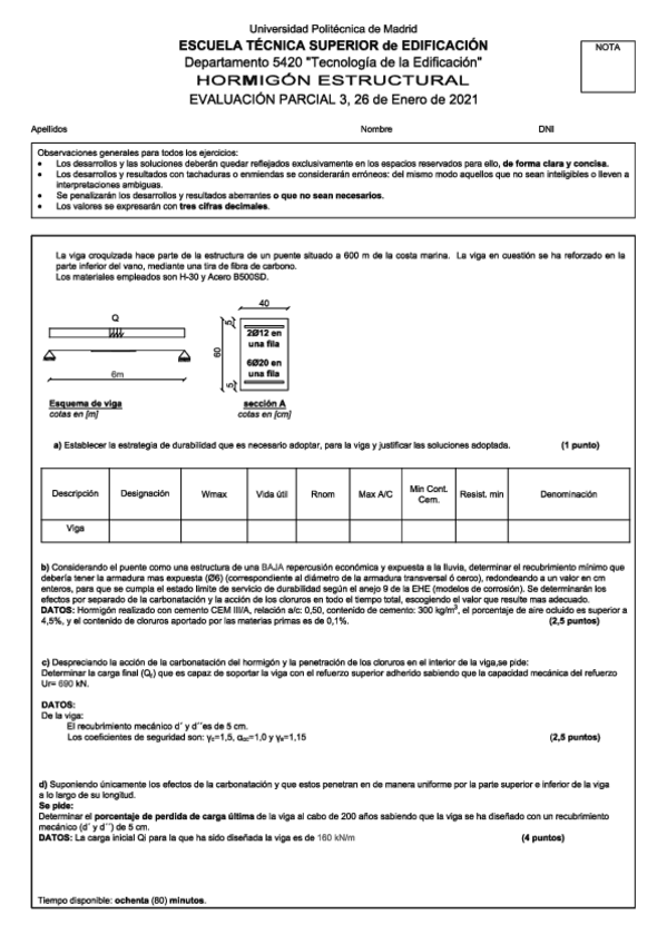
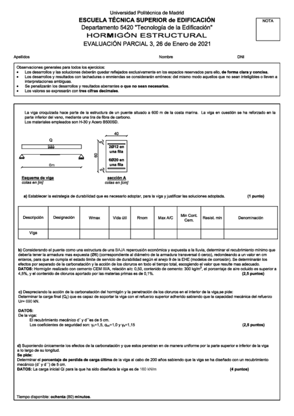
He publicado nuevos examenes de 4º Hormigón Estructural: EP3.pdf

1 página

examenes

-

EXAMEN FINAL

He publicado nuevos examenes de 4º Gestión del Proceso Edificatorio: EXAMEN FINAL

1-Examen-Gestion-de-Proceso-EdificatorioEjercicio1-enero-2021.pdf
2-Examen-Gestion-de-Proceso-EdificatorioEjercicio2-enero-2021.pdf

examenes

-

EXAMEN ESPECIAL

He publicado nuevos examenes de 4º Planificación y Programación de Obras II: EXAMEN ESPECIAL

Exa-especial-enero-2021.pdf
Exa.pdf
Exa.pdf

He publicado nuevos test de 4º Patología y Rehabilitación: 22012021-EVALUACION-PARCIAL-2-TEST--Revision-del-intento.pdf

10 páginas

He publicado nuevos ejercicios de 4º Planificación y Programación de Obras II: PLANI-2.pdf

14 páginas

He publicado nuevos test de 4º Patología y Rehabilitación: PREGUNTAS-TIPO-DEL-2o-TEST.pdf

45 páginas

practicas

-

PRÁCTICAS CORREGIDAS 19-20

He publicado nuevos practicas de 4º Hormigón Estructural: PRÁCTICAS CORREGIDAS 19-20

EJERCICIO-3-CORRECCION.pdf
EJERCICIO-4-CORRECCION.pdf
EJERCICIO-6-CORRECCION.pdf
EJERCICIO-1-CORRECCION.pdf
EJERCICIO-9-CORRECCION.pdf
Ejercicio-7CORREGIDO.pdf